
賃貸マンション
シャーメゾン新大阪WEST
所在地 大阪府大阪市淀川区新高1-14-18
構造 重量鉄骨造 地上3階建
部屋数 21部屋
| 所在地 | 大阪府大阪市淀川区新高1-14-18 |
|---|---|
| 交通 | 阪急神戸線「神崎川」駅より徒歩10分 |
| 竣工 | 2022年4月 |
| 構造 | 重量鉄骨造 地上3階建 |
| 土地面積 | 770.11㎡ |
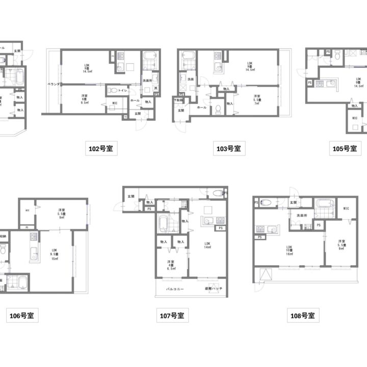
| 貸室面積 | 45.30~47.60㎡ |
| 間取り | 1LDK |
| 駐車場 | あり |
| 備考 | 玄関ドア:オートロックシステム、バイク置き場、駐輪場、ウォシュレット |
物件に関するお問い合わせは、
下記よりお気軽にご相談ください。
フォームからお問い合わせ
お問い合わせお電話でのお問い合わせ
06-6998-3111